R 5,500,000
Property Details
Exclusive mandate!!!! APPROVED DEVELOPMENT LAND, SMALL HOLDING IN MONTANA
Pretoria, Montana, Prime 2 ha development property for sale in a high growth area.
Town planning already approved to develop 60 Dwelling units or a Lodge or a retirement centre.
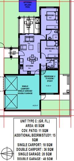
- Dwelling units: Residential 1; 60 sectional title units
- Lodge; 160 Bedrooms and maximum of 320 guests
- Retirement centre;
Close to Montana Chamberlains.
SCHEDULE A VIEWING TODAY
Property Features
- Property Type Vacant Land Agricultural
- Stand Size 2ha
Location
Enquiry
Interested in property 2485541? Please fill in your details below, and we will contact you as soon as possible.










